2025年9月29日
In
【吉祥寺 最新物件】
アニメ制作会社さまにオススメ
ビルの特徴
最も人流が多いと言っても過言ではない、吉祥寺サンロード商店街。そのサンロードから枝葉のように伸びる「ペニーレーン」との角地に位置するビルです。ペニーレーンとは、ロフト前とコピスA館&B館の間を、メインストリートとする細く長い小路です。お買い物でちょっと一息つけるベンチが用意されていることが特徴です。サンロードの対面側には、BOOKSルーエさんがあり、吉祥寺のランドマークとして、スマホを使わない顧客にも説明しやすいビルです。建物にはエレベーターは一基ありますが、サンロードから階段を少し上り、エレベーター乗り場となるスタイルのため、車椅子には対応していません。
ビルのスペック
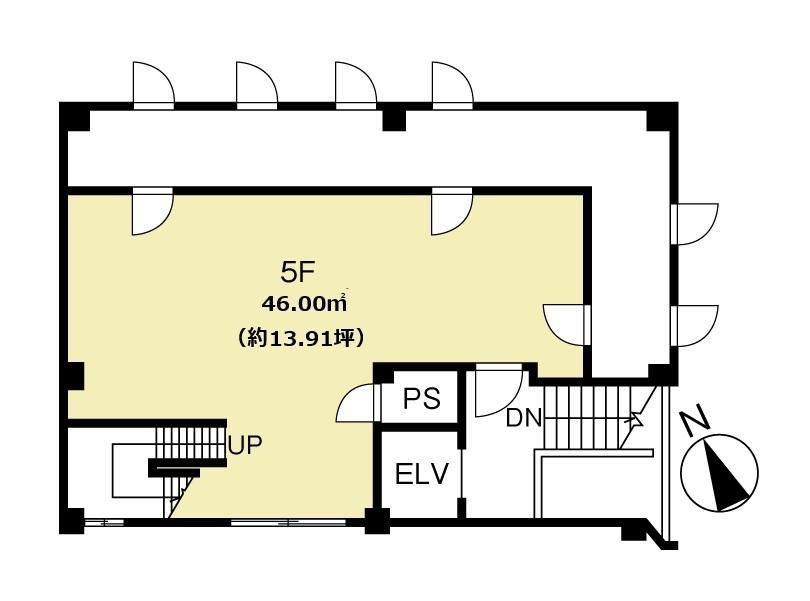
| 所在地 | 武蔵野市吉祥寺本町1丁目11番31号 | ||
|---|---|---|---|
| 商店会 | 吉祥寺サンロード商店街 https://sun-road.or.jp/ ペニーレーン商店会 https://www.musashino-shouren.com/shotenkai/kk020/ | ||
| 交通 | JR中央線「吉祥寺」駅徒歩2分、京王井の頭線「吉祥寺」駅徒歩3分 | ||
| 建築年月 | 1977年7月(昭和52年) | ||
| 構造 | 鉄骨・鉄筋コンクリート造 陸屋根 地下2階付5階建 | ||
| 参考面積 | 46.00㎡(約13.91坪)~168.66㎡(約51.02坪) | ||
| 賃借権種類 | 普通 | ||
| 総テナント数 | 6テナント | ||
| YouTube | https://youtu.be/Lh-qJUwJTLU?si=rH8jk8RlzFiyKc8- | ||
| その他 | 物件の詳細は、お電話(0422-27-2501)やフォームからユニバーサルリアルティまでお気軽にお問い合わせください。 | ||



〇 お問い合わせは下記のリンクから
#anime #アニメ #吉祥寺